Gallery

The gallery presents images of Zimtor as it appears at present as well as some plans for the future.


The Zimtor building

The Zimtor building. We have chosen a house in a residential neighborhood to make Zimtor more like a home than a school.


Children at lunch

The backyard looking northeast. We plan to add a playground set, two covered sandboxes, and an outdoor block set.


Main Classroom Looking South

The main classroom looking south. We use some Montessori materials, like the Geometric Solids seen in this picture, where we believe they are useful, but we use a wide variety of other materials as well.


Main Classroom Lookin North

The main classroom looking north. The large open area is used for group activities and for floor-based materials.


Arte and Science Classroom

The art and science classroom. Art and science materials are stored in the kitchen cabinets. The water table is used for a variety of art and science activities.


Architect's First Floor Plan

The architect's drawing for remodeling the first floor. We plan to add a wing at the back to double the main classroom space as well as make a number of changes to meet the building code.


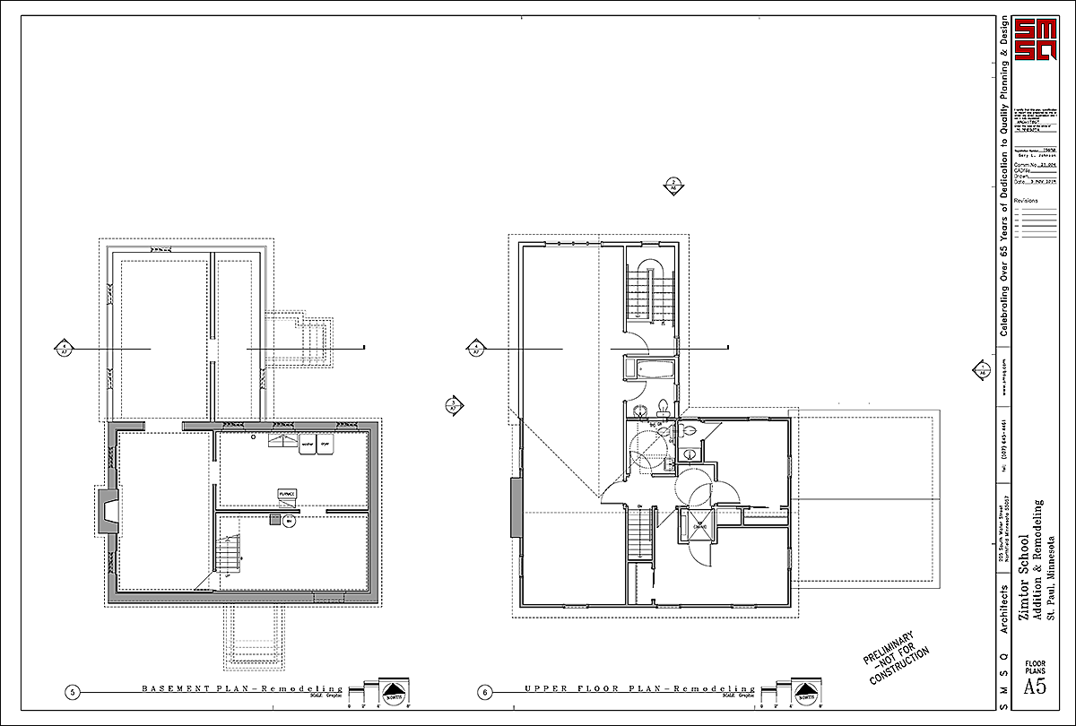
Arthitect's Second Floor Plan

The architect's drawing for remodeling the basement and the second floor. The second floor will be used for additional classroom space as enrollment warrants.

Amos Bronson Alcott

Amos Bronson Alcott about 1860. Alcott, the father of Louisa May Alcott, opened the Temple School in Boston in 1834. Based partly on Pestalozzi's methods, discipline was handled by the school as a whole and independent thought was strongly encouraged. Louisa May Alcott wrote, “My father taught in the wise way which unfolds what lies in the child’s nature, as a flower blooms, rather than crammed it, like a Strasbourg goose, with more than it could digest.” Amos Bronson Alcott's book about the Temple School, published in 1836, created widespread denunciation of the school, especially for Alcott's discussions with students questioning the literal truth of the Bible. The school rapidly lost enrollment and closed after only a few years of operation. For his few admirers, though, Alcott was an important innovator in progressive education.